Từ khâu khảo sát, thiết kế đến lắp đặt thiết bị bếp, Bếp Thiên Bình đồng hành cùng tiệm bánh T’Mories để xây dựng một không gian làm bánh gọn gàng, hiệu quả.
Thông tin dự án
Chủ đầu tư: Tiệm bánh T’Mories
Hạng mục: Khảo sát, tư vấn, thiết kế bản vẽ, cung cấp và lắp đặt thiết bị bếp tiệm bánh
Địa chỉ: Số 42B, Lô 43 – TT4, khu Thành phố Giao Lưu, phường Cổ Nhuế 1, quận Bắc Từ Liêm, Hà Nội
Giới thiệu về tiệm bánh T’Mories
T’Mories là một tiệm bánh nhỏ nằm trong khu đô thị Thành phố Giao Lưu (Hà Nội). Tiệm được xây dựng với mong muốn mang lại cảm giác nhẹ nhàng, dễ chịu cho bất kỳ ai ghé qua. Không theo đuổi sự hào nhoáng hay cầu kỳ, T’Mories tập trung vào chất lượng từng chiếc bánh, từng ly đồ uống. Các loại bánh ngọt, bánh mặn đều được làm thủ công tại chỗ mỗi ngày, sử dụng nguyên liệu sạch, rõ nguồn gốc. Dù không có quá nhiều chủng loại, nhưng mỗi món đều được làm ra với sự chỉn chu và tinh tế.
Không gian của tiệm bánh T’Mories cũng là một điểm cộng lớn. Thiết kế hiện đại, ấm áp, nhiều ánh sáng tự nhiên và sắp xếp khéo léo để vừa có góc ngồi yên tĩnh cho người làm việc, vừa đủ thân thiện để trò chuyện, gặp gỡ. Mọi chi tiết trong tiệm – từ tông màu, bàn ghế đến cách bài trí – đều được tính toán kỹ để mang lại trải nghiệm thoải mái nhất cho khách hàng.
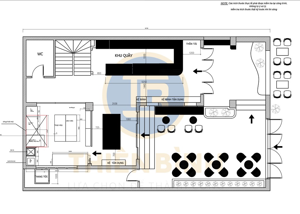
Tiệm bánh T’Mories không chỉ là nơi bán bánh và cà phê, mà là không gian để mọi người ghé lại, thư giãn và tận hưởng một buổi sáng yên bình hay một buổi chiều chậm rãi. Và để giữ trọn được tinh thần đó, khu vực bếp cũng cần được thiết kế thật hợp lý và gọn gàng, sạch sẽ và đảm bảo vận hành hiệu quả. Đó cũng chính là lý do mà Thiên Bình rất trân trọng cơ hội được đồng hành cùng tiệm từ những ngày đầu tiên.

















