Thiết kế bếp ăn nhà hàng là hạt nhân quyết định giữa sự thành công và thất bại của một doanh nghiệp ẩm thực. Một bếp ăn được thiết kế tốt sẽ giúp tối ưu hóa hiệu suất làm việc, giảm thiểu thời gian và công sức trong chế biến món ăn. Điều này không chỉ giúp nhà hàng tiết kiệm chi phí mà còn tạo ra những món ăn đồng nhất và ngon miệng.
Xem nhanh
ToggleThông tin dự án
Giới thiệu về nhà hàng UnicB Eatery
Tọa lạc tại số 50 đường Bùi Thị Xuân, UnicB Eatery tự hào là một điểm đến ẩm thực nổi bật và sang trọng tại khu vực. Với phong cách thiết kế tinh tế và không gian trang nhã, màu sắc đỏ xanh là chủ đạo cùng với ánh sáng mềm mại và tỉ mỉ trong từng chi tiết trang trí tạo nên cảm giác ấm cúng và dễ chịu. UnicB Eatery không chỉ là một nhà hàng đẳng cấp mà còn là một không gian nghệ thuật đẹp mắt, không gian lịch sự và thanh lịch tạo nên cảm giác thoải mái và ấm cúng cho thực khách.
![]() Nhà hàng UnicB Eatery | ![]() Không gian bên trong | ![]() Không gian bên ngoài |
Nhà hàng Trung Quốc đường đại UnicB Eatery mang đến cho thực khách một trải nghiệm ẩm thực độc đáo, đầy hấp dẫn. Menu đồ ăn đa dạng, sáng tạo, chú trọng đến những nguyên liệu từ thiên nhiên đặc biệt hạn chế dầu mỡ. Một bữa ăn “hoàn hảo“ từ không gian, chất lượng đồ ăn, service thì cực đỉnh. Nhân viên nhiệt tình, tận tâm phục vụ từng món ăn ngon lành, nhanh chóng.
![]() Món ăn đặc sắc của UnicB Eatery | ![]() Ẩm thực Trung Hoa đa dạng | ![]() Bữa ăn hoàn hảo từ không gian đến chất lượng |
Thiết kế, cung cấp thiết bị bếp cho nhà hàng UnicB Eatery
Thiên Bình tự hào là một đơn vị duy nhất thiết kế và cung cấp thiết bị bếp cho nhà hàng UnicB Eatery. Với nhiều năm kinh nghiệm và tâm huyết trong lĩnh vực này, Thiên Bình đã thể hiện sự đáng tin cậy và chuyên nghiệp trong việc cung cấp những giải pháp thiết kế đột phá và hiện đại cho UnicB Eatery.
Thiên Bình không chỉ tập trung vào việc cung cấp các thiết bị bếp inox nhà hàng chất lượng cao, mà còn đặc biệt quan tâm đến việc tối ưu hóa quy trình làm việc và tiết kiệm không gian. Bên cạnh đó, Thiên Bình đã đưa ra những giải pháp thông minh và sáng tạo giúp tận dụng hiệu quả diện tích bếp, tạo điều kiện thuận lợi cho đầu bếp và nhân viên phục vụ.
Sự sáng tạo và tính thẩm mỹ của Thiên Bình đã tạo nên không gian bếp đẳng cấp, hấp dẫn và tinh tế cho UnicB Eatery. Những thiết bị bếp hiện đại và tiện nghi đã giúp nhà hàng nâng cao hiệu suất làm việc, đáp ứng nhu cầu đa dạng của thực khách và mang đến những trải nghiệm ẩm thực tuyệt vời.
Video quá trình thi công lắp đặt thiết bị nhà bếp công nghiệp cho nhà hàng UnicB Eatery
Tiến hành khảo sát, lên bản vẽ thiết kế
Trước khi khởi đầu quá trình thiết kế, đội ngũ của Thiên Bình đã thực hiện một loạt các khảo sát tỉ mỉ để hiểu rõ những yêu cầu và mong muốn của khách hàng.
Sau đó, đội ngũ thiết kế đã lên bản vẽ chi tiết cho không gian bếp ăn của UnicB Eatery. Sự tinh tế và chuyên nghiệp trong việc lên bản vẽ thể hiện rõ ràng từng khu vực trong không gian bếp, từ bố trí bàn ăn, khu vực nấu ăn, đến khu rửa và khu vực lưu trữ thực phẩm. Đặc biệt, bản vẽ đã được điều chỉnh và tối ưu hóa để đảm bảo tính hợp lý và tiện nghi cho toàn bộ quá trình nấu ăn.
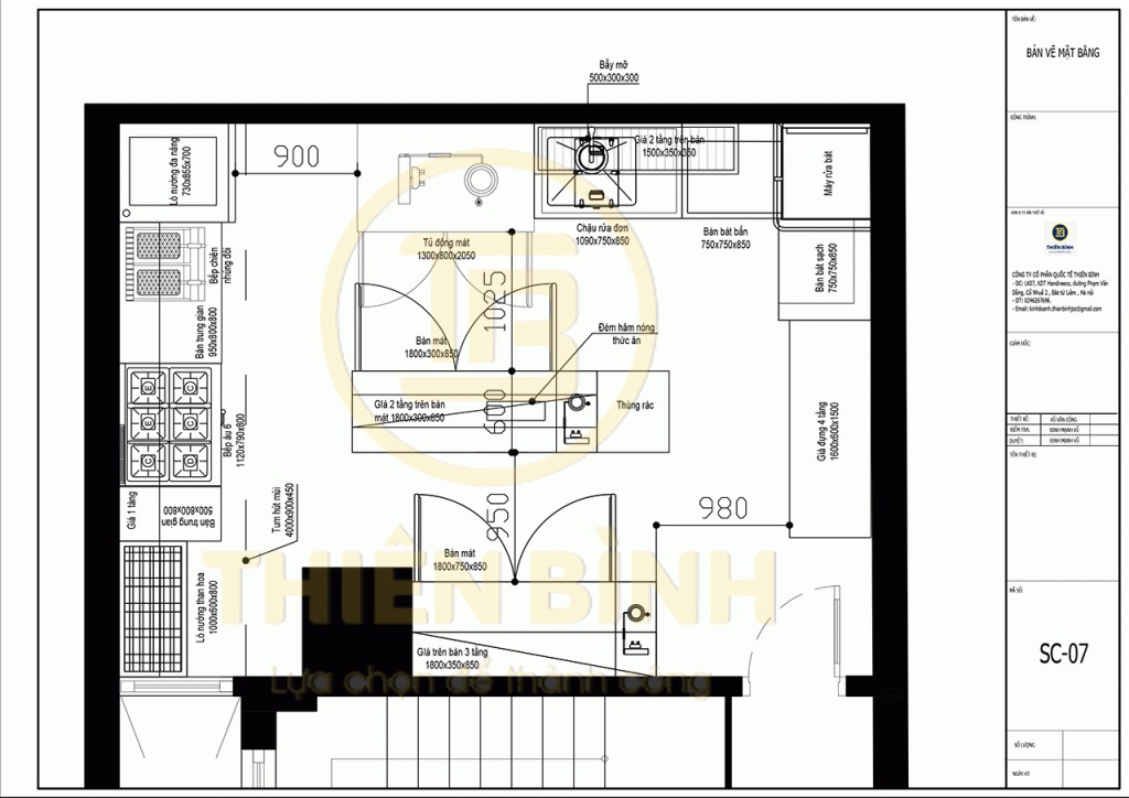
Bản vẽ thiết kế bếp nhà hàng UnicB Eatery
Quá trình thi công, lắp đặt
Đội ngũ nhân viên kỹ thuật Thiên Bình đã chăm chỉ, nỗ lực, miệt mài tích cực làm việc trong từng khâu để đảm bảo không gian bếp nhà hàng UnicB Eatery được thiết kế tối ưu, giúp các đầu bếp làm việc hiệu quả và sáng tạo, đem đến cho thực khách những món ăn tươi ngon và chất lượng hàng đầu. Quá trình thi công setup bếp nhà hàng cho dự án được tiến hành nhanh chóng đúng thời gian tiến độ như đã ký kết trong hợp đồng.
Hoàn thành dự án
Thiên Bình Group đã hoàn thành dự án thiết kế bếp công nghiệp cho nhà hàng UnicB Eatery đúng theo yêu cầu và tiến độ của chủ đầu tư. Chúng tôi chân thành gửi lời cảm ơn tới Ông Nguyễn Đức Minh – chủ nhà hàng UnicB Eatery và toàn thể nhân viên nhà hàng, những người đã hỗ trợ và đồng hành trong quá trình thực hiện dự án này.
Sự tin tưởng và hợp tác của quý khách là động lực lớn để Thiên Bình không ngừng nỗ lực và phấn đấu trong tương lai. Chúng tôi hy vọng sẽ tiếp tục đồng hành và hỗ trợ quý khách trong các dự án kinh doanh chuỗi nhà hàng tiếp theo. Hãy để Thiên Bình tiếp tục đem đến những giải pháp thiết kế và cung cấp thiết bị bếp chất lượng, giúp quý khách kinh doanh và đạt được thành công trong ngành ẩm thực.
* Thông tin liên hệ dự án hotline/zalo: HN 0916.905.888 – HCM 0982.790.696
































