Tổng quan về dự án
Bệnh viện đa khoa tỉnh Sơn La là bệnh viện tuyến cao nhất của tỉnh Sơn La với quy mô 550 giường bệnh. Bệnh viện được xếp hạng I theo Quyết định số 1703/QĐ-UBND ngày 14/7/2016 của UBND tỉnh, là đơn vị sự nghiệp công lập tự chủ loại 2. Bệnh viện thực hiện 7 chức năng nhiệm vụ chính theo Quy chế bệnh viện.
Bệnh viện có tổng số 32 khoa, phòng và 01 Trung tâm gồm 08 phòng chức năng, 19 khoa lâm sàng và 05 khoa Cận lâm sàng. Tổng số cán bộ bệnh viện là 478, trong đó có 128 bác sĩ, 17 dược sĩ, 183 điều dưỡng, 15 hộ sinh, 47 kỹ thuật viên, 51 cán bộ khác và một số cán bộ hợp đồng.
Bệnh viện được thành lập vào đầu tháng 7 năm 1954, cho đến nay, bệnh viện được xây dựng trên khuôn viên rộng với tổng diện tích xây dựng là 9,06 ha. Công trình Bệnh viện đa khoa tỉnh Sơn La khang trang, hiện đại đóng vai trò quan trọng trong việc tiếp tục đổi mới và phát triển của ngành Y tế Sơn La đồng thời tạo môi trường khám chữa bệnh lý tưởng cho người dân.
Bệnh viện đa khoa tỉnh Sơn La không ngừng đổi mới trong ngành Y tạo môi trường khám chữa bệnh lý tưởng cho người dân
Vừa qua, công ty cổ phần Quốc tế Thiên Bình rất hân hạnh và vinh dự được hợp tác với Bệnh viện Sơn La trong dự án thiết kế bếp bệnh viện, cung cấp lắp đặt các trang thiết bị bếp công nghiệp, thiết kế hệ thống thông gió hút mùi cho nhà ăn bệnh viện.
Với năng lực thiết kế, kinh nghiệm sản xuất trong thực hiện nhiều dự án thiết kế bếp bệnh viện, bếp ăn tập thể, Thiên Bình đã trở thành đơn vị thiết kế cung cấp các thiết bị bếp công nghiệp chính cho nhà ăn bệnh viện Sơn La.
Tiến hàng khảo sát lên bản vẽ thiết kế bếp bệnh viện
Với nhu cầu cấp thiết trong việc thiết kế bếp bệnh viện, cung cấp các thiết bị bếp công nghiệp, thiết kế hệ thống hút mùi bếp công nghiệp cho khu bếp bệnh viện. Nhằm đảm bảo công tác phục vụ dinh dưỡng cho đội ngũ y bác sĩ, bệnh nhân, người nhà chăm bệnh nhân của bệnh viện đa khoa Sơn La, Công ty cổ phần Quốc tế Thiên Bình đã tiến hành khảo sát, lên bản vẽ thiết kế chi tiết cho khu bếp để đáp ứng với các yêu cầu tiêu chuẩn của phía Bệnh viện đưa ra.
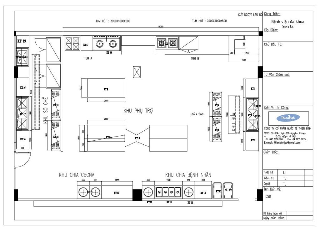
Bản vẽ mặt bằng thiết bị bếp bệnh viện Sơn La
Bản vẽ hệ thống thông gió bếp
Tiến hành thi công lắp đặt và hoàn thành dự án
Sau khi thiết kế, sản xuất và kiểm định chất lượng chắc chẽ, Công ty cổ phần Quốc tế Thiên Bình đã tiến hành thi công lắp đặt hệ thống bếp ăn bệnh viện đúng thời gian, tiến độ cho dự án theo yêu cầu từ phía chủ đầu tư.
Hệ thống thông gió hút mùi inox
Thiên Bình tiến hành cung cấp, thi công lắp đặt cho bếp bệnh viện
Thi công lắp đặt các thiết bị inox
Khu sơ chế bếp bệnh viện
Hoàn thành dự án bếp bệnh viện đa khoa Sơn La
Thiên Bình đã đầu tư về nguồn lực, đội ngũ thiết kế và đưa ra những phương án thi công hệ thống bếp ăn công nghiệp phục vụ cho bệnh viện Sơn La hợp lý. Nhờ đó, đã giúp cho chủ đầu tư tiết kiệm được nhiều chị phí đông thời mang lại khu bếp vận hành đúng quy trình, phục vụ hiệu quả.
Thiên Bình xin giửi lời cảm ơn đến Bệnh viện đa khoa Sơn La trong dự án cung cấp các thiết bị, sản xuất, thiết kế bếp bệnh viện. Rất mong được sự đồng hành hợp tác với bệnh viện trong các dự án tiếp theo.











