Tổng quan về dự án
El Gaucho Argentinian Steakhouse là một tập đoàn nhà hàng xuyên Quốc gia được thành lập đầu tiên tại Thành phố Hồ Chí Minh tại Việt Nam vào năm 2011, sau đó được mở rộng sang các nước Thái Lan, Philippines, Hồng Kông, Slovakia và Đức, Praha, Cộng hòa Séc. Hiện nay có 7 nhà hàng El gaucho được mở tại Việt Nam.
Nhắc tới El Gaucho là nhắc tới nhà hàng bít tết Argentina nổi tiếng, mang đậm phong cách cổ điển. Với mục tiêu thiết lập nên chuẩn mực trong lĩnh vực phục vụ ăn uống, nhà hàng chuyên biệt món bít tết bò với chất lượng thượng hạng. Cùng với dịch vụ đẳng cấp thế giới và thiết kế nội thất nhà hàng tinh xảo, El gaucho mang đến trải nghiệm tích hợp nhằm thỏa mãn mọi giác quan của thực khách.
Nhà hàng El Gaucho Argentinian Steakhouse 99 Xuân Diệu nằm trong chuỗi nhà hàng của công ty TNHH Cao Bồi Nam Mỹ. Đây là nhà hàng thứ 3 được mở tại Việt Nam và là đại diện đầu tiên của El Gaucho Argentinian steakhouse ở Hà Nội.
Nhà hàng El Gaucho 99 Xuân Diệu
El Gaucho được tọa lại tại số 99 Xuân, Quảng An, Tây Hồ, Hà Nội có vị trí đặc địa, khung cảnh thơ mộng. Đây là một nhà hàng cao cấp mang phong cách trang trí hiện đại nhưng lại phảng phất nét hoài cổ dễ chịu, không gian bên trong rất ấm áp, pha trộn các yếu tố của retro và hiện đại vừa mang nét đơn giản lại có sự tinh xảo trong từng chi tiết. khiến mọi người ai cũng bị thu hút khi đã đặt chân đến đây lần đầu tiên.
Không gian nhà hàng El Gaucho 99 Xuân Diệu
Đến với nhà hàng thực khách sẽ được thưởng thức các món bít tết, nước sốt đậm đà, ngon ngọt, thịt cừu được chế biến lạ miệng, các món ăn kèm hấp dẫn thu hút, món Âu hấp dẫn. Bên cạnh đó với đội ngũ nhân viên được đào tạo kỹ về nghiệp vụ phục vụ và những đầu bếp hàng đầu, đem tới cho mỗi khách hàng những trải nghiệm khó quên.
Món ăn hấp dẫn, lôi cuốn thức khách
Công ty cổ phần Quốc tế Thiên Bình với kinh nghiệm thiết kế và năng lực sản xuất thi công thực hiện nhiều dự án thiết kế, setup bếp nhà hàng, khách sạn nổi tiếng, đã có dịp bắt tay hợp tác với chủ đầu tư là Chi nhánh công ty TNHH Cao Bồi Nam Mỹ tại Hà Nội có địa chỉ tại Lô G2, tầng trệt, tòa nhà Somerset West Point, số 2 đường Tây Hồ, Phường Quảng An, Quận Tây Hồ, Hà Nội trong dự án thiết kế hệ thống bếp ăn cho nhà hàng El Gaucho số 99 Xuân.
Hợp đồng dự án thiết kế và cung cấp thiết bị bếp nhà hàng El Gaucho
Tiến hành khảo sát, lên bản vẽ thiết kế bếp nhà hàng
Với yêu cầu cấp thiết của chủ đầu tư về thiết kế hệ thống khu bếp nhà hàng, hệ thống thông gió, hút khói làm mát bếp, cung cấp trang thiết bị nhà bếp, thiết kế hệ thống đường dẫn gas cho khu bếp El Gaucho tại số 99 Xuân Diệu, Thiên Bình đã đưa ra các phương án tư vấn thiết kế bếp nhà hàng hợp lý, hiệu quả và tiết kiệm chi phí nhất cho chủ đầu tư.
Các thiết bị được Thiên Bình Grop tư vấn cho nhà hàng được phân theo từng khu bao gồm khu bếp chính gồm có hệ thống thiết bị bếp âu như bếp chiên nhúng, bếp chiên phẳng, bếp nướng than đá nhân tạo, lò nướng, chụp hút mùi inox. Khu sơ chế gồm các thiết bị bếp inox nhà hàng như bàn bếp inox, kệ bếp inox, chậu rửa công nghiệp, tủ đông, tủ mát…
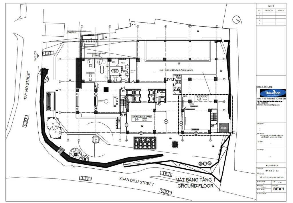
Bản vẽ thiết kế hệ thống thiết bị bếp nhà hàng El Gaucho 99 Xuân Diệu Tây Hồ
Quá trình thiết kế đươc Thiên Bình đầu tư nguồn nhân lực, thời gian thiết kế cho ra bản vẽ chuẩn xác đúng với nhu cầu và bám sát với thực tế của nhà hàng. Bên cạnh đó, quá trình sản xuất trang thiết bị bếp công nghiệp inox, thiết bị bếp công nghiệp nhập khẩu được kiểm định chất lượng sản phẩm kỹ lưỡng và có đầy đủ giấy tời chứng nhận CO-CQ trước khi bàn giao lắp đặt cho nhà hàng.
Bản vẽ thiết kế hệ thống gas điện cho bếp nhà hàng El Gaucho 99 Xuân Diệu Tây Hồ
Tiến hành thi công, lắp đặt, hoàn thành công trình
Bếp nhà hàng El gaucho được Công ty cổ phần Quốc tế Thiên Bình thiết kế hoàn thiện đúng thời gian tiến độ của công trình mà phía chủ đầu tư đưa ra. Các tiêu chuẩn về thiết kế, yêu cầu về chất lượng sản phẩm và quy trình hoạt động của khu bếp đáp ứng cao với sự mong đợi từ phía chủ đầu tư là Chi nhánh công ty TNHH Cao Bồi Nam Mỹ tại Hà Nội và nhà hàng El gaucho đưa ra.
Hệ thống gas được lắp đặt hoàn chỉnh
Hệ thống thông gió hút mùi bếp nhà hàng El Gaucho
Bếp nướng than đá được setup
Hoàn thành khu bếp nhà hàng El Gaucho













